top of page

Residential

Lothian St

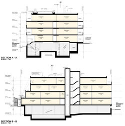
Multi Residential - Town Planning                                                                       

6 Storey Building

North Melbourne

Software used:

Autocad, Photoshop & Sketchup

ElevsWEST
ElevSOUTH
Perspectives
Perspective

Residential

LG
GL
L3
Secs
bottom of page